事例集:【CASE 09】3年掛かりの負動産権利調整

再建不可・ゴミ溜め入居者・建築審査会対策・親族トラブル...難題山積な土地の一挙改善事例!

このプロジェクトは、再建築不可の老朽化アパートの権利調整をおこない、再建築可能にした事例です。

再建築不可の老朽化アパートの権利調整

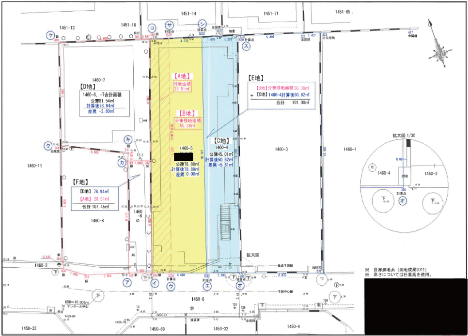
再建不可:D地に建っていた老朽化のアパートは、前面道路の接道幅が2未満のため再建築ができませんでした。建物は老朽化が激しく手入れがなされていませんでした。 ゴミ溜め入居者:そのためか、建物に住む入居者は敷地内にどこからかゴミを持ってきてしまう状況で、居室内にもゴミがあふれていました。 建築審査会対策:この状況を改善するために、F地の所有者に対して建築基準法の特例を使って再建築をできるように協力を要請し承諾を得ましたが、コロナ禍のため特例の審査会が開催さませんでした。 親族トラブル:その時期にC地の所有者から親族間トラブルの相談を受け、C地を取得することとなりました。

AB地の一団地の所有者と1年にわたる交渉をおこない、AB地の一団地のうちA地とC地を交換することで調整が整い、A地とD地を一体化することで、前面道路の接道幅員が1.86から3.5に拡幅され、特例を使わずに通常の建築ができることとなりました。

元々、土地の状態が再建築ができるようになった場合は、老朽化アパートを取り壊して新築の住宅を建築する予定があることを老朽化アパートの入居者に伝えており、ゴミ屋敷化した住居を清掃する気力がなくなった入居者は、費用をかけずに転居できることを大変喜んでいただきました。

権利調整交換地

相続トラブルの原因は「分有」

AB地とC地を一団地としてアパートが建てられていました。もともとAB地とC地は、それぞれ長女と長男が所有しておりましたが、C地に相続が発生し長男の子供が相続しました。次にB地にも相続が発生し、長男の弟(次男)が相続しました。そのため、B地とC地は叔父と甥がそれぞれを所有し分有しながらアパートが建っている状況でした。このアパートも老朽化が激しく、建て直しが迫られていましたが、叔父と甥の間で協議が整わず、親族トラブルが発生していました。

本来であれば叔父甥のどちらかが土地を購入して一人の所有者として建て直しをすることが望ましいのでしょうが、どちらも譲らず、甥から相談を受けた弊社がD地を取得することとなりました。弊社がD地を取得後、B地の所有者へ双方がメリットを享受できる企画を提案し承諾。B地とC地を一体化したE地として新築アパートを建築することとなりました。

不動産を共有で相続することは望ましくないと通説になっていますが、分有も同様です。所有者が複数いれば複数の考え方が在ります。全員の意見が同時に合致することは稀ですので、不動産の共有分有の相続は十分に注意するべきです。

▸ 事例一覧に戻る